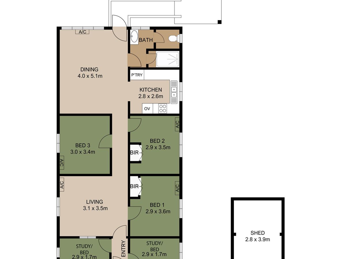
Positioned in the heart of New Farm, this well-appointed home offers comfort, space, and lifestyle. Featuring three generous bedrooms, a central bathroom, and two separate study rooms, it is ideal for families or those working from home. Enjoy year-round comfort with air conditioning throughout, gas cooking, and the convenience of separate dining and living areas that provide plenty of room to relax and entertain.
Step outside to find an outdoor laundry complete with a water tank, adding practicality to everyday living. Located just moments from the vibrant James Street precinct, you'll have easy access to boutique shopping, cafes, restaurants, and public transport. This is an excellent opportunity to secure a home in one of Brisbane's most sought-after inner-city suburbs, known for its leafy streets, riverwalks, and relaxed yet sophisticated lifestyle.
Property Features:
• Air-conditioning throughout
• Secure parking
• Gas cooking
** Please Note - All information including any photography and plans provided is indicative and may be outdated. While we strive to represent the actual condition of the property, as a prospective tenant you should not rely on the information provided but should carry out your own property inspections along with other inquiries to determine if the property is suited to your requirements.
Features
Floor Plan
Floorplan 1










