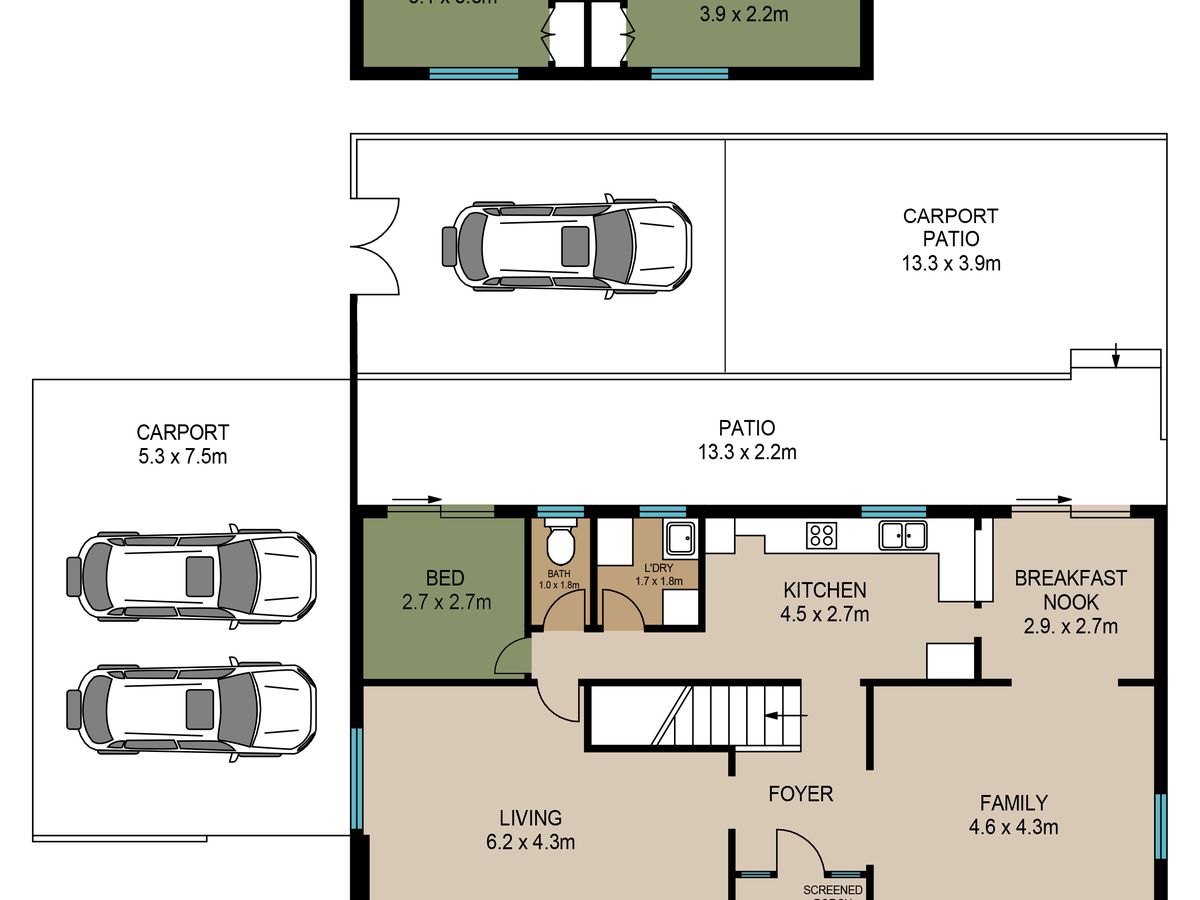
This spacious, two story family home in the highly sought-after area of Keperra is located only minutes from Great Western Super Centre, Schools and Parks. Featuring two generous living areas for those who enjoy hosting. You'll have plenty of space for everyone, with five bedrooms with ceiling fans and covered outdoor Patio. The open plan kitchen has ample storage leading into the living and dining. Dual oversized height carport perfect for a boat or caravan with an additional secure tandem carport and two large storage sheds. You will never have to carry laundry downstairs again with a laundry chute from the bathroom down to the laundry.
Features Include:
• Built-in wardrobes
• Crimsafe screens
• Insulated ceiling
• Laundry chute
• New carpet
• Solar hot water
• Spacious dual living area
• Covered Patio
• Fully fenced
• Oversized carport
• Ceiling fans
• Storage sheds
• Split system air-conditioners
**Please note - All information including any photographs and plans provided is indicative and may be outdated. While we strive to represent the actual condition of the property, as a prospective tenant you should not rely on the information provided but should carry out your own property inspection along with other inquiries to determine if the property is suited to your requirements.
Floor Plan
Floorplan 1
